Ibizasevenhouse | Technische Studien, Bearbeitung und Finanzierung
Ibiza7evenHouse Im Bewusstsein, dass Ihre Zeit äußerst wichtig ist, werden Sie alle notwendigen Unterlagen für die Durchführung Ihres Projekts bearbeiten
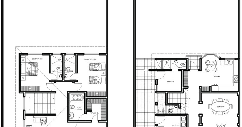
Technische Studien
Bei der Entwicklung des Projekts werden verschiedene Aspekte untersucht und berücksichtigt:
• Untersuchung der Art der auszuführenden Arbeiten.
• Analyse von Ideen, Zielen und Projekten. Optimierung von Räumen, Entwicklung und Vorschlag verschiedener Ausführungsalternativen.
• Erstellung von Plänen und technischen Unterlagen, um die Effizienz der Konstruktions-, Fertigungs- und Montageprozesse zu gewährleisten
Finanzierung
Bei Ibiza7evenHouse geht es vor allem darum, dass Menschen ihre Träume verwirklichen können. Aus diesem Grund müssen unsere Dienstleistungen angesichts der gegenwärtigen Situation über die Ausführung der Arbeiten hinausgehen, und deshalb haben wir ausgezeichnete Finanzierungsbedingungen ausgehandelt.



